
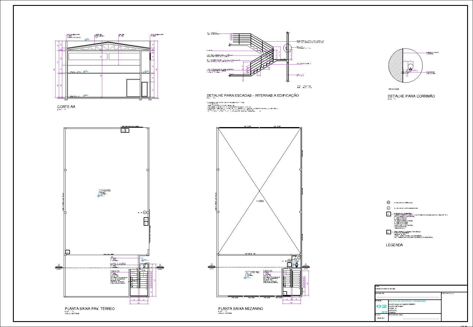
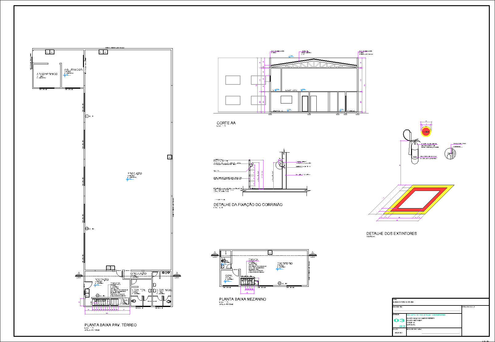
Barracão com mezanino, preventivo contra incêndio, 3 pranchas A1
D18B1-INC-DWG
R$832.00
Barracão, 2 pisos, 1 mezanino, área total 877,88m2, área do lote 1200,00m2.
Garante segurança para usuários e ocupantes;
Reduz danos ao patrimônio;
Define localização correta de extintores;
Viabiliza obtenção de alvarás e habite-se;
Assegura funcionamento de iluminação de emergência;
