
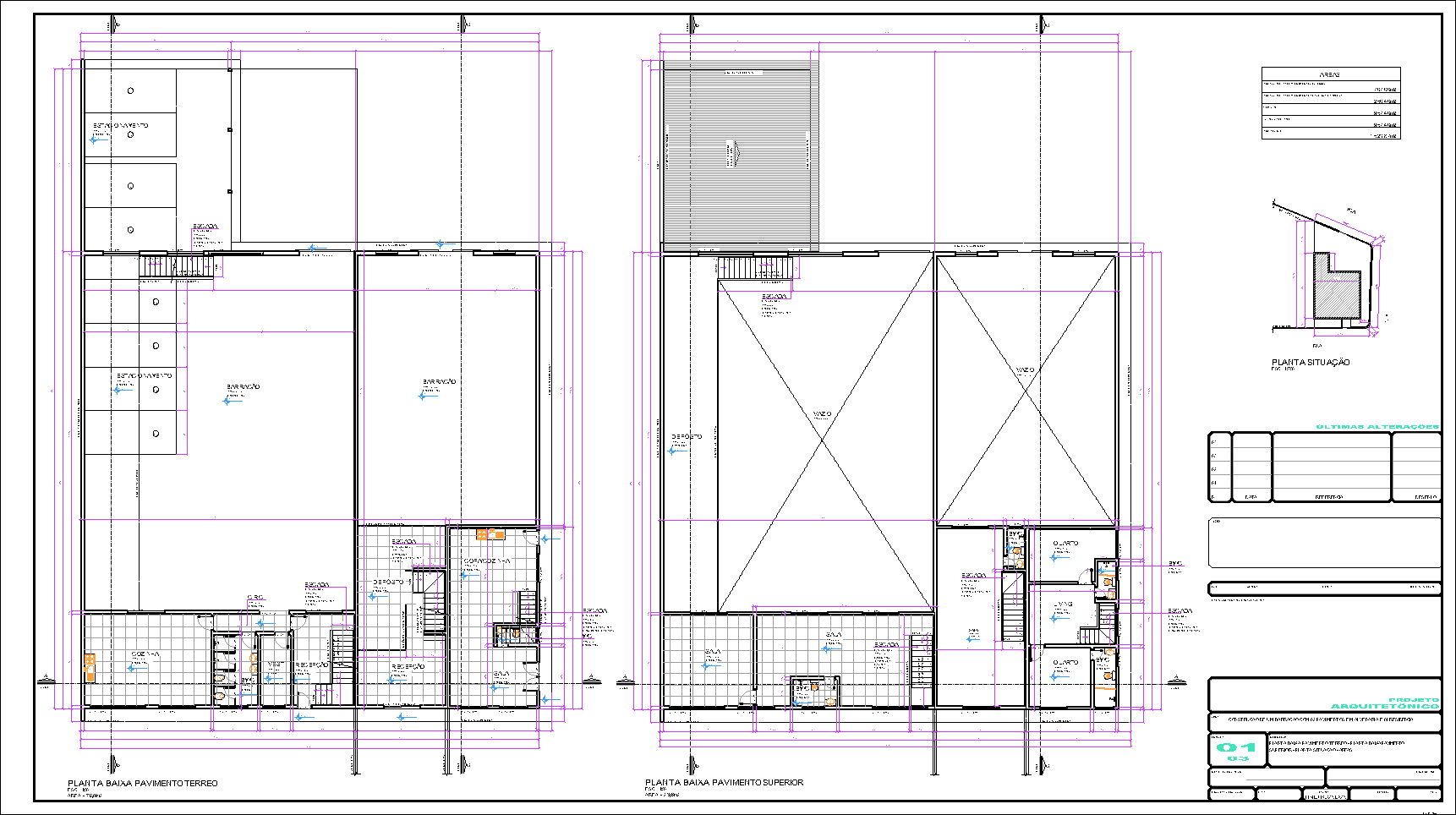
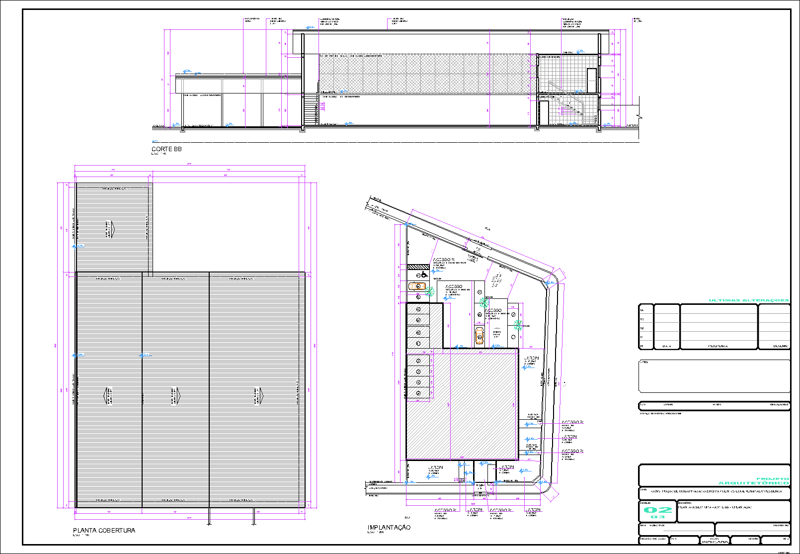
Barracão, residência, arquitetônico, 3 pranchas A1
D24B7-ARQ-DWG
R$2050.00
Barracão, com 2 pisos, 1 residência, área total de 957,40m2, onde a área do lote é de 1523,87m2.
A acessibilidade e a mobilidade foram levadas em conta desde o começo;
Construção visando a futura valorização no mercado imobiliário;
Utilize este planta como base para orçamentos detalhados;
Planta com personalidade, estética e desempenho técnico em equilíbrio;
