
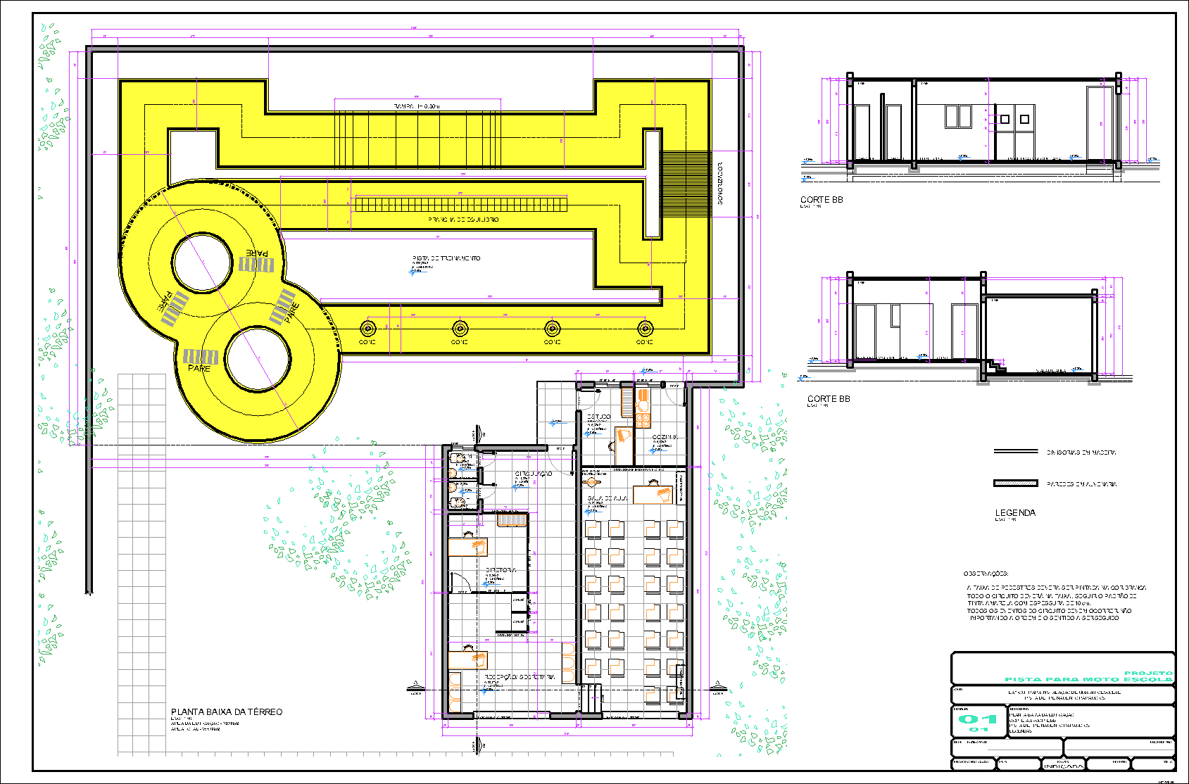
Pista para Moto Escola, local de treinamento, 1 prancha A1
D97AU9-PIS-DWG
R$378.00
Pista para testes em Moto Escola, local de treinamento para 26 alunos, área total 355,00m2.
Este desenho dá clareza operacional absoluta desde o primeiro dia.
Este projeto elimina incertezas no dimensionamento de espaço útil.
A pista projetada profissionalmente reduz acidentes e incidentes.
Você monetiza antes dos outros conseguirem desenhar.
