
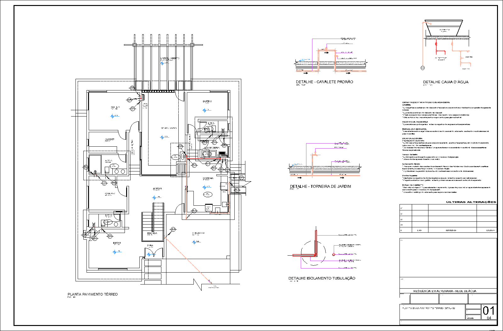
Residência, água quente, água fria, 4 pranchas A1
D14R3-AGU-PDF
R$356.00
Residência, 2 pisos, área total 230,00m2, terreno parcialmente plano.
Materiais conforme normas técnicas da ABNT e facilmente encontrado no mercado;
Projeto compatível com arquitetônico aprovado (existente aqui na loja);
Layout inteligente que facilita a instalação e reduz tempo de obra;
Arquivo digital em alta definição, pronto para impressão ou uso em dispositivos móveis;
