
Residência, arquitetônico, 2 pranchas A1
D7R2-ARQ-DWG
R$612.00
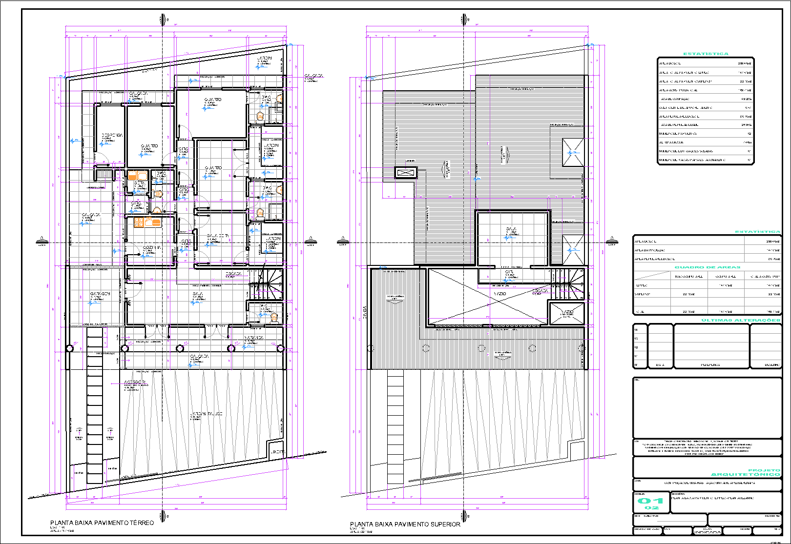
Residência, 2 pisos, área total da edificação 169,71m2, terreno parcialmente plano, área total do lote 299,40m2.
Construção visando o melhor uso do terreno com inteligência espacial;
A distribuição interna reduz imprevistos durante a execução;
Foi considerado a acessibilidade e mobilidade desde o início;
Essa divisão interna aproveita a iluminação natural de forma estratégica;
