
Residência, arquitetônico, 3 pranchas A1
D10R5-ARQ-DWG
R$1124.00
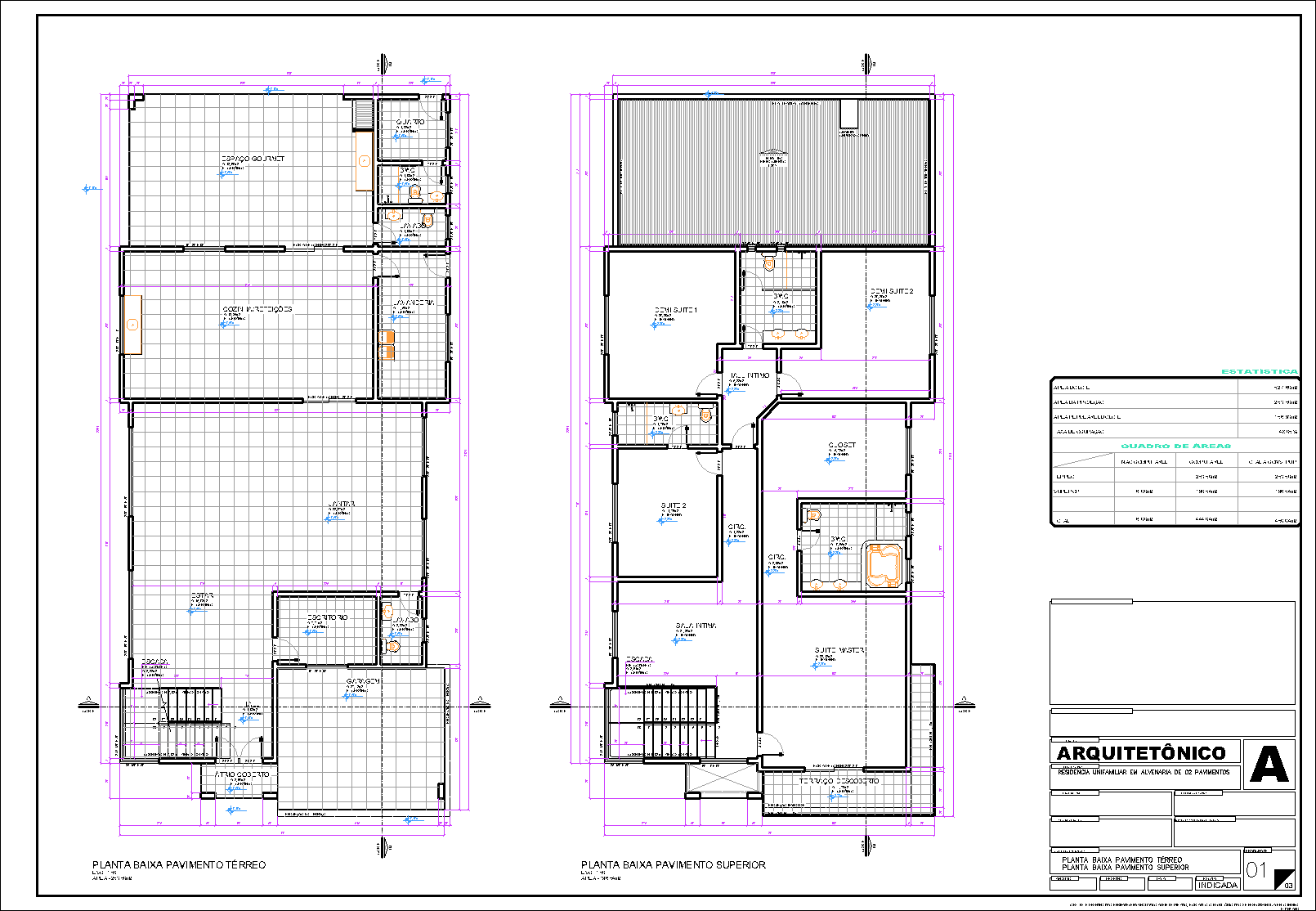
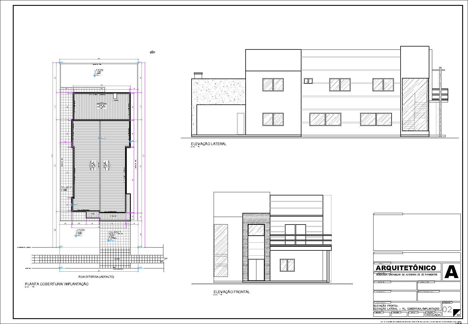
Residência, 2 pisos, área total da edificação 450,04m2, área do lote 527,60m2, terreno plano.
Projeto elaborado visando a viabilidade técnica e econômica;
Essa versão promove segurança para usuários e ocupantes;
Ter uma planta em mãos facilita o diálogo com fornecedores e construtoras;
Tenha essa planta em mãos e personalize ao seu gosto;
