
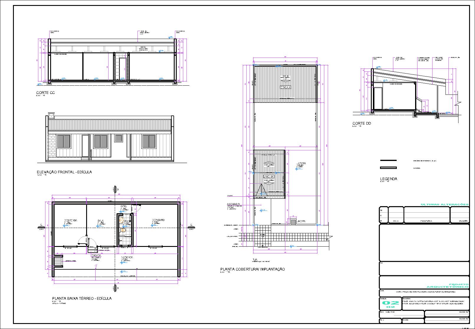
Residência com edícula, arquitetônico, 2 pranchas A1
D34R6-ARQ-DWG
R$617.00
Residência, 2 pisos, pavimentos, com edícula, área total da edificação 172,02m2, área do lote 360,00m2, terreno plano.
Esse projeto facilita o cronograma da obra com etapas a frente;
A distribuição interna reduz imprevistos durante a execução;
Esse projeto ajuda na escolha de sistemas hidráulicos e elétricos;
Use essa planta como base para orçamentos detalhados;
