
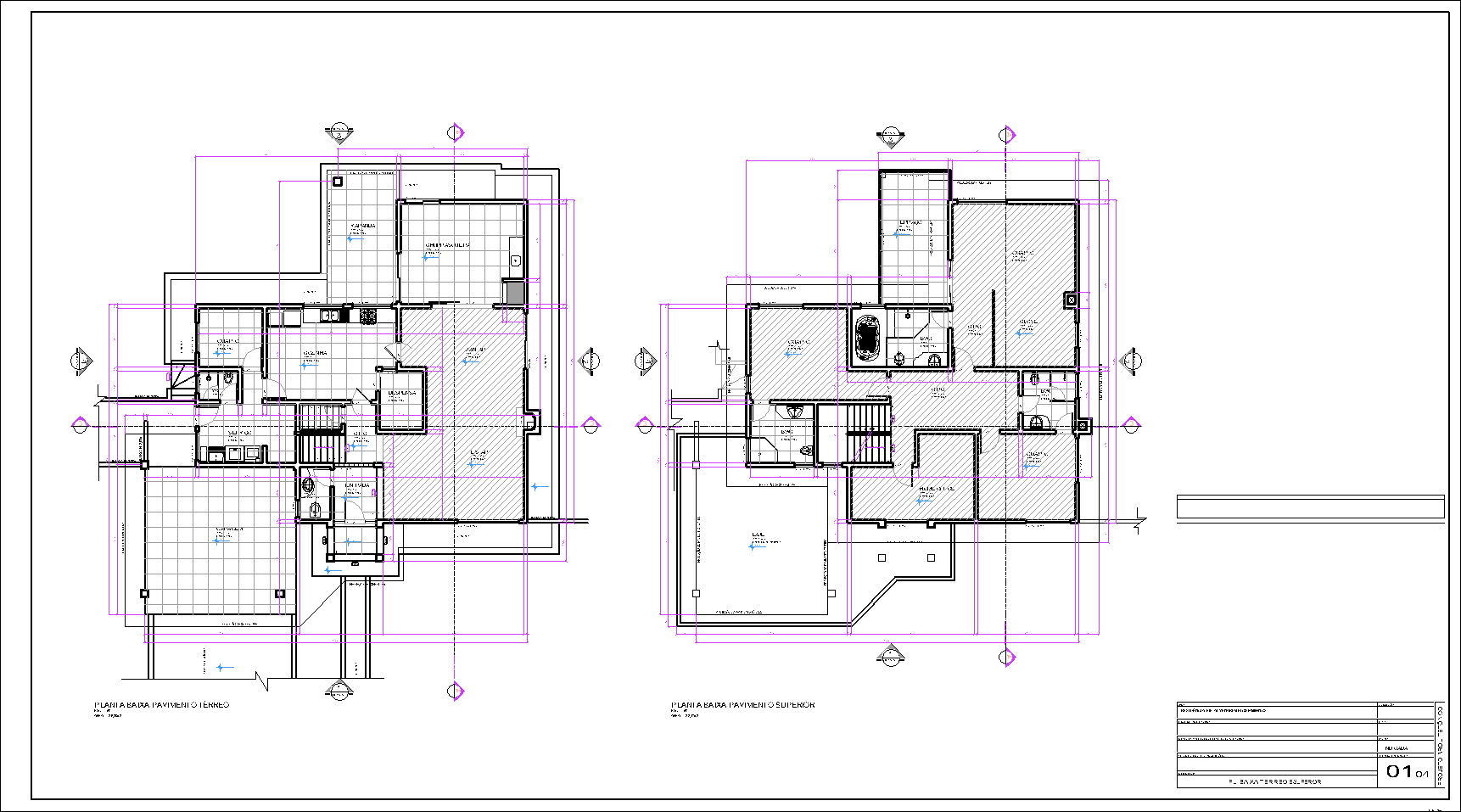
Residência com sótão, arquitetônico, 4 pranchas A1
D9R4-ARQ-PDF
R$626.00
Residência, 3 pisos, área total 353,18m2, terreno plano.
Foi considerado a acessibilidade e mobilidade desde o início;
Com esse projeto em mãos, evita-se retrabalho e correções dispendiosas;
Linguagem de orientação clara para execução em campo;
Use essa planta como base para orçamentos detalhados;
