
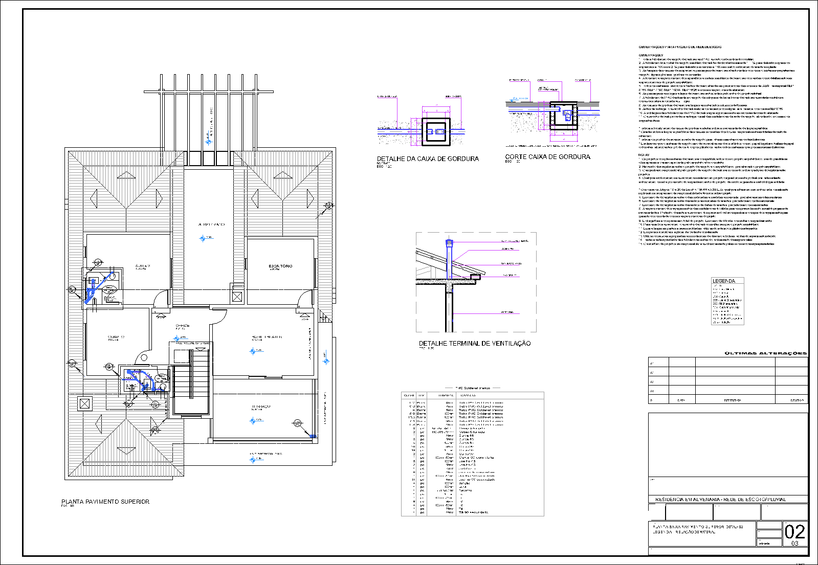
Residência, esgoto, 3 pranchas A1
D15R3-ESG-PDF
R$333.00
Residência, 2 pisos, área total 230,00m2, terreno parcialmente plano.
Tubulação de esgoto executada em PVC conforme norma;
Projeto 100% compatível com a versão arquitetônica aprovada;
Sistema projetado para facilitar manutenção preventiva;
Projeto elaborado com foco em funcionalidade e segurança;
