
Residência, esgoto, 3 pranchas A1
D12R5-ESG-PDF
R$303.00
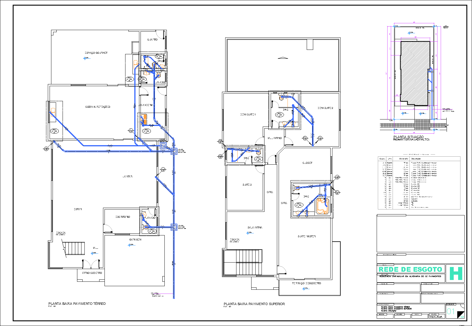
Residência, 2 pisos, área total da edificação 450,04m2, área do lote 527,60m2, terreno plano.
Caixas identificadas conforme o tipo de sistema;
Pontos de acesso à rede para limpeza e desentupimento;
Tubulações dimensionadas para vazões específicas;
Indicado para terrenos com declividade moderada;
