
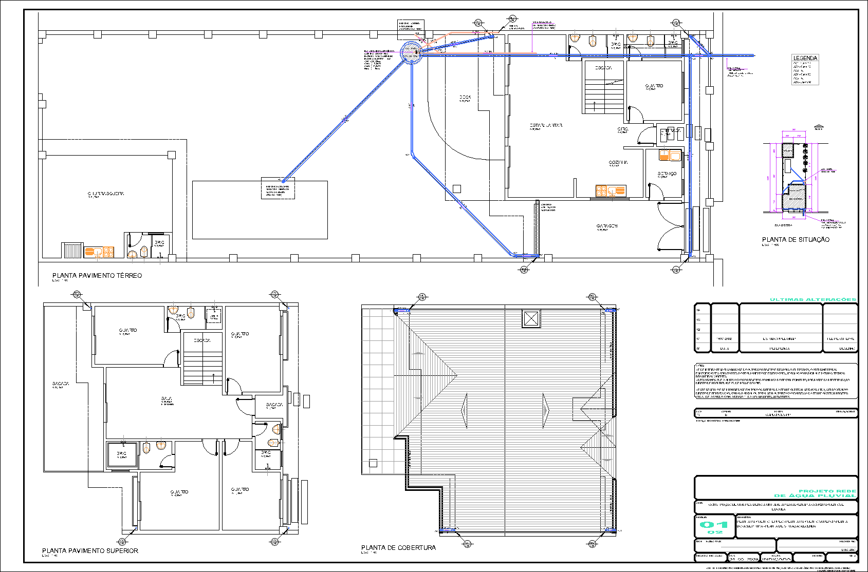
Residência com edícula, pluvial, 2 pranchas A1
D6R1-PLU-DWG
R$170.00
Residência, 2 pisos, área total da edificação 300,16m2, terreno plano, área total do lote 420,00m2.
Projeto desenvolvido para garantir o escoamento adequado das águas da chuva, evitando alagamentos, erosões e danos estruturais;
Tubulação em PVC conforme indicação em projeto;
Pontos de acesso à rede para desobstruções futuras;
Solução eficiente para escoamento de águas pluviais;
